Raumaufteilung - Planungsvorschläge?

gmc
Beiträge: 247
Registriert: Mi 4. Aug 2010, 10:15

Re: Raumaufteilung - Planungsvorschläge?

#11

Beitrag von gmc » So 21. Okt 2012, 01:02

GRUNDRISS_OG.jpg
GRUNDRISS_OG.jpg (14.06 KiB) 1407 mal betrachtet
Mal ein Versuch zum Rantasten, der Zuschnitt ist ziemlich spannend;)
Was mir nicht klar war, sind wie sind die Mauerstärken der Aussenwände, bin mal mit deinen Aussenmaßen mit 24cm rangegangen
Ich habe mich Dir angeschlossen und auch 24 cm gezeichnet. Ich bin allerdings erst mit dem Südteil im Reinen als Vorschlag, Diskussionsgrundlage.
Ich erwarte von Manfred Fotos: innen, außen. Ich habe mich an die Vorgaben von M. bezüglich Außenräumen gehalten.
....Geschoßhöhen kenne ich nicht, die dargestellten Treppen sind angenommen mit 2.85 GH, bei verzogenen Treppen mit 15 Stg a' 19/26. Podesttreppen sind zwar wesentlich bequemer/sicherer zu begehen, aber das gibt der Platz kaum her.......
....das geht zusehr ins Detail, ebenso die Anordnung der (bisher unbekannten) Fensteröffnungen ...
wobei Manfred mir hier nicht ganz klar ist, warum du die Bestandsfenster nicht eingezeichnet hast, willst du wirklich _alle_ Stürze versetzen?
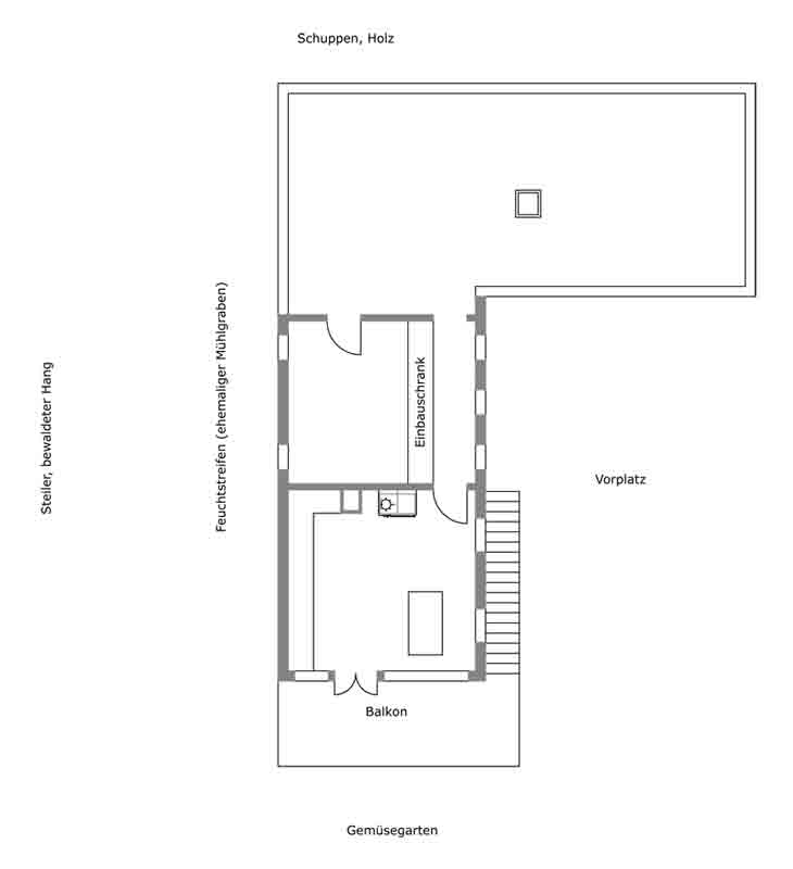
Wie Ihr seht gibt es noch erheblich weiße Flecken in meinem Plan. Ein Knackpunkt ist die Geschoßtreppe. Und die beste Lage des Bades.
Der Raum nördlich der Küche könnte das Büro sein. Der Einbauschrank ist Wand und vielleicht von beiden Seiten nutzbar - teilweise.
Mein Planung ist als .DWG Datei verfügbar.

Manfred

Re: Raumaufteilung - Planungsvorschläge?

#12

Beitrag von Manfred » So 21. Okt 2012, 08:53

Vielen Dank! Da sind schon einige gute Ansätze dabei, die ich aufgreifen kann.
Die Grundmaße im ersten Plan sind Innenmaße, d.h. die Wände kommen außen dazu.

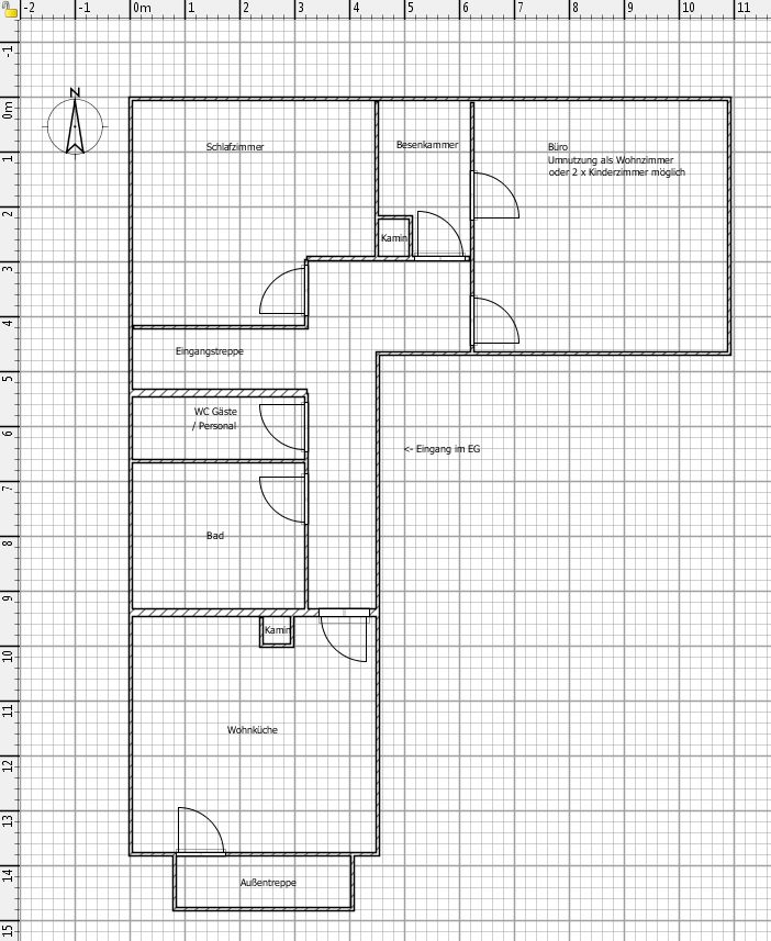
Mein erster Entwurf:
Das Büro könnte als Wohnzimmer umgenutzt werden oder in 2 Kinderzimmer aufgeteilt.
Wegen der möglichen Aufteilung habe ich gleich eine 2. Tür vorgesehen.
Die Aufteilung würde ich ungleich machen, mit einem kleineren Raum in Norden. Dieser würde dafür Zugang zu einer Schlafebene im Spitzboden darüber erhalten. Diese Schlafebene über dem Büro könnte ich auch gleich mit einbauen, als Schlafmöglichkeit für Gäste.
Was mir noch nicht ganz gefällt, ist die Lage des Gäste-WC- wegen der nötigen Leitungen.
Evtl. sollte ich das d hin packen, wo jetzt die Treppe ist und dafür den Schnitt des Schlafzimmers ändern.
grundriss_entwurf1.jpg
grundriss_entwurf1.jpg (144.61 KiB) 804 mal betrachtet

Manfred

Re: Raumaufteilung - Planungsvorschläge?

#13

Beitrag von Manfred » So 21. Okt 2012, 10:27

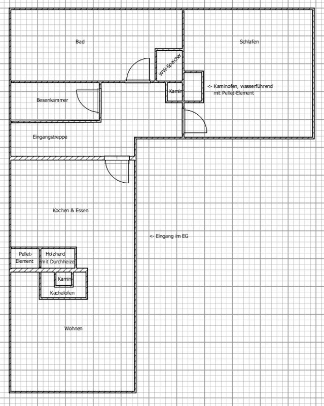
Neuer Entwurf.
Nassräume zusammengelegt.
Kamin ins Besenkammer verlegt.
Bei Bedarf wäre so Einzelofenheizung in Schlafzimmer, Büro (per Rohr über der Besenkammertür), Küche und Bad möglich.

Was mir noch nicht recht gefällt, ist das kleine Bad.
Da sollten auch WaMa und Trockner mit rein und ich möchte eine große, bodengleiche Dusche.
Im Gegenzug könnte ich auf eine Badewanne verzichten (da meckern die Mädels...) aber dafür eine schöne Hot Tub im Außenbereich aufstellen (sollte die Mädes wieder versöhnen?).
Dateianhänge
grundriss_entwurf2.jpg
grundriss_entwurf2.jpg (142.65 KiB) 804 mal betrachtet

Manfred

Re: Raumaufteilung - Planungsvorschläge?

#14

Beitrag von Manfred » So 21. Okt 2012, 10:38

Ich hatte vergessen zur erwähnen, dass das Ganze mögl. auch noch Seniorengerecht und mit kleinen Änderungen behindertengerecht sein sollte. Daher der breite Flur. Die Türen breiter als akutell eingezeichnet.
Und bei Bedarf könnte man später im Winkel der L-Form (oberhalb der Beschriftung Eingang im EG) einen Außenlift montieren. :hmm:

Benutzeravatar
Theo
Beiträge: 2869
Registriert: Mi 4. Aug 2010, 11:08
Wohnort: SW-Deutschland

Re: Raumaufteilung - Planungsvorschläge?

#15

Beitrag von Theo » So 21. Okt 2012, 10:41

Was hast Du denn mit dem Haus vor??
Gruß
Theo

Live Free or Die

Manfred

Re: Raumaufteilung - Planungsvorschläge?

#16

Beitrag von Manfred » So 21. Okt 2012, 12:02

Theo hat geschrieben:Was hast Du denn mit dem Haus vor??
Was man halt mit Häusern so macht? Drin wohnen und arbeiten.
:hmm:

babayaga
Beiträge: 570
Registriert: Mo 19. Mär 2012, 22:12
Wohnort: unteres Erzgebirge - KLZ6b

Re: Raumaufteilung - Planungsvorschläge?

#17

Beitrag von babayaga » So 21. Okt 2012, 21:58

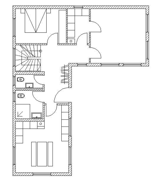
Hmm, neue Eingangssituation, kenne zwar den Lageplan nicht, scheint alles recht flexibel zu sein?
Lageplan und somit auch Infos über Zufahrt/Garage(n)/Geländehöhen und wo liegen die Medien an, können recht einflussreich sein.
Aber egal, hab mich mal an deinem 2. Entwurf orientiert, ist fast 1:1 dasselbe.
Geändert/verkleinert habe ich das SZ zugunsten einer 'normalen' Treppe.
Beachte auch, dass wenn du das DG teils zu Wohnzwecken nutzen möchtest eine vernünftige Treppe hermuss.

Badsituation nach wie vor unschön, hier stellt sich die Frage Sekt oder Selters.
Hab mich mal für Selters enstchieden, also das 'Bad' in eine reine Nasszelle verwandelt, DU/WC und WB, dafür einigermaßen behindertengerecht (nicht rollstuhlgerecht), Waschmaschine würde ich im HWR (Besenkammer) unterbringen, Trockner? k.A. hab keinen. Ausserdem sind kleine Nasszellen schneller warm, und manche Mädels frieren leicht;-)

Rein praktisch gesehen ist die Anordnung der Nassräume beieinander zwar vorteilhaft, aber auch verwechslungsträchtig ('Oh!, falsche Tür')
Schöner fände ich da schon eine strikte Trennung zwischen Privato und Öffentlich, also eine Schiene SZ-Bad -Kizi, einem HWR der vermittelt und dem öffentlichen Teil Ko/Wo/Ess und GWC. Aber gut, ist ja kein Neubau, einen Tod stirbt man immer.

Zur Küche: für eine Essküche (ohne WoZi und Speisekammer) finde ich 18qm (für SV ohne Nebengelasse) echt hart am Limit,
da müsstest Du mal manche Raumprogramme lesen: 20qm Küche (mit Kochinsel), 30qm Essen/Wohnen, 15qm Bad (freistehende Wanne), aber ja gut, das ist halt der Mainstream 'schöner Wohnen'.

Aber nochmal fix zur Treppe, GH ist ja unbekannt, aber mit der Treppe steht und fällt sowas, überhaupt grundsätzlich sind da noch recht viele Unbekannte in der Gleichung.

Der Genius Loci des Hauses tät mich mal interessieren, ich glaub der ist schön.
Dateianhänge
neu-2.jpg
neu-2.jpg (32.94 KiB) 1368 mal betrachtet
It's not the hammer - it is the way you hit.

gmc
Beiträge: 247
Registriert: Mi 4. Aug 2010, 10:15

Re: Raumaufteilung - Planungsvorschläge?

#18

Beitrag von gmc » Mo 22. Okt 2012, 08:45

Glückwunsch zu dem klaren Grundriss!

Manfred

Re: Raumaufteilung - Planungsvorschläge?

#19

Beitrag von Manfred » So 25. Nov 2012, 21:41

Ich habe inzwischen noch ein paar Entwürfe mit veränderten Vorgaben gemacht.
Reine Wohnnutzung für 1 bis 2 Personen.
Heizung über 2 Feuerstellen.

Hier ein Entwurf mit einem offenen Küchen-Wohnbereich, beheizt über einen Herd mit Durchfeuerung und eingebautem Wasserschiff. Dazu ein über die Durchfeuerung beheizbarer Kachelofen in den Wohnbereich hinein.
Das Schlafzimmer wird über einen wasserführenden Kaminofen beheizt, der gleichzeitig Warmwasser und Heizung für das angrenzende Bad liefert. Im Sommer soll die Warmwasserversorgung über eine thermische Solaranlage oder elektrisch durch den sommerlichen Leistungsüberschuss der Photovoltaikanlage erfolgen.
Beide Feuerstellen sollen mit Pellet-Modulen ergänzt werden, die bei Abwesendheit für mehrer Tage die Heizung übernehmen können.
Bei Greithwald habe ich einen Pellet-Kit mit 105 kg Füllmenge für deren Herde gefunden. Das ist schon ein ganz ordentlicher Vorrat, der bei halbwegs brauchbarer Dämmung auch in der stärksten Frostphase etwas vorhalten sollte.
grundriss_entwurf3.jpg
grundriss_entwurf3.jpg (113.74 KiB) 1257 mal betrachtet

Benutzeravatar
kraut_ruebe
Förderer 2019
Förderer 2019
Beiträge: 10832
Registriert: Di 3. Aug 2010, 09:48
Wohnort: Klimazone 7b - pannonisches Klima

Re: Raumaufteilung - Planungsvorschläge?

#20

Beitrag von kraut_ruebe » So 25. Nov 2012, 22:25

magst du es im schlafzimmer so warm wie im scheinbar recht grossen bad (bzw. dem ww-bedarf in der übergangszeit)? ich würd das nicht mögen für mich, ich mags warm beim duschen aber kühl beim schlafen :hmm:
There's a crack in everything. That's how the light gets in.

Antworten

Zurück zu „Gebäude, Zäune etc.“